MENU
Logo

Safa at Aljada, Sharjah - Arada Developer

Safa at Aljada by Arada offers modern 1–3 bedroom apartments in Sharjah’s prime community, blending premium design, smart features, and top-class amenities for a vibrant family lifestyle.
GET THE BROCHURE
Overview
Safa at Aljada by Arada offers modern 1–3 bedroom apartments in Sharjah’s prime community, blending premium design, smart features, and top-class amenities for a vibrant family lifestyle.
Safa at Aljada: Modern Living in the Heart of Sharjah
Premium 1–3 bedroom apartments combining contemporary design, smart features, and a prime location within the vibrant Aljada community. .
Safa at Aljada: A Lifestyle Beyond Expectations

Enjoy stylish family spaces, advanced home features, and world-class leisure and wellness amenities all in one dynamic Sharjah destination.

Aljada
AED 1,064,000

Amenities

Swimming Pool
Kids Play Area
Gymnasium
Restaurants

Location

Aljada


Floor Plans

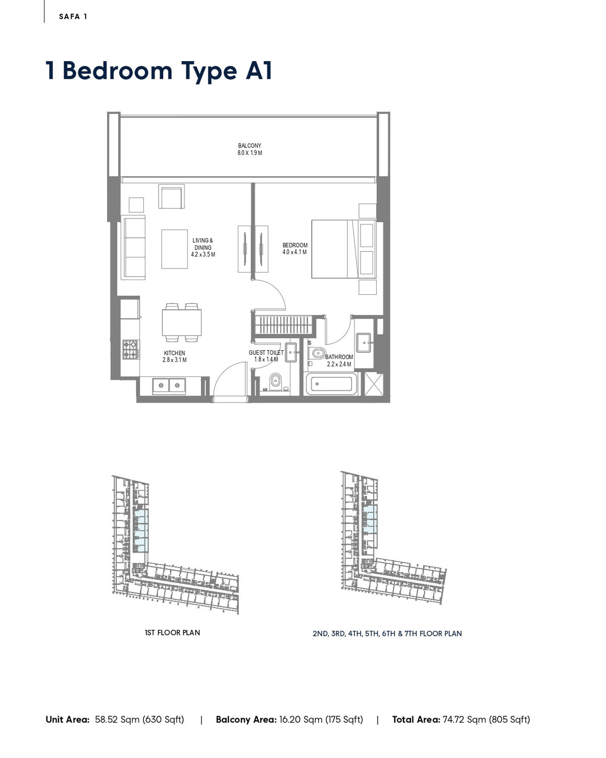
1 Bedroom

1 Bedroom Apartment

Area:

Download Brochure
2 Bedroom

2 Bedroom Apartment

Area:

Download Brochure

Payment Plan

Down Payment: 5%
Payment Plan: 35/65
Handover: Announcing - Soon

Download Brochure




WhatsApp Call